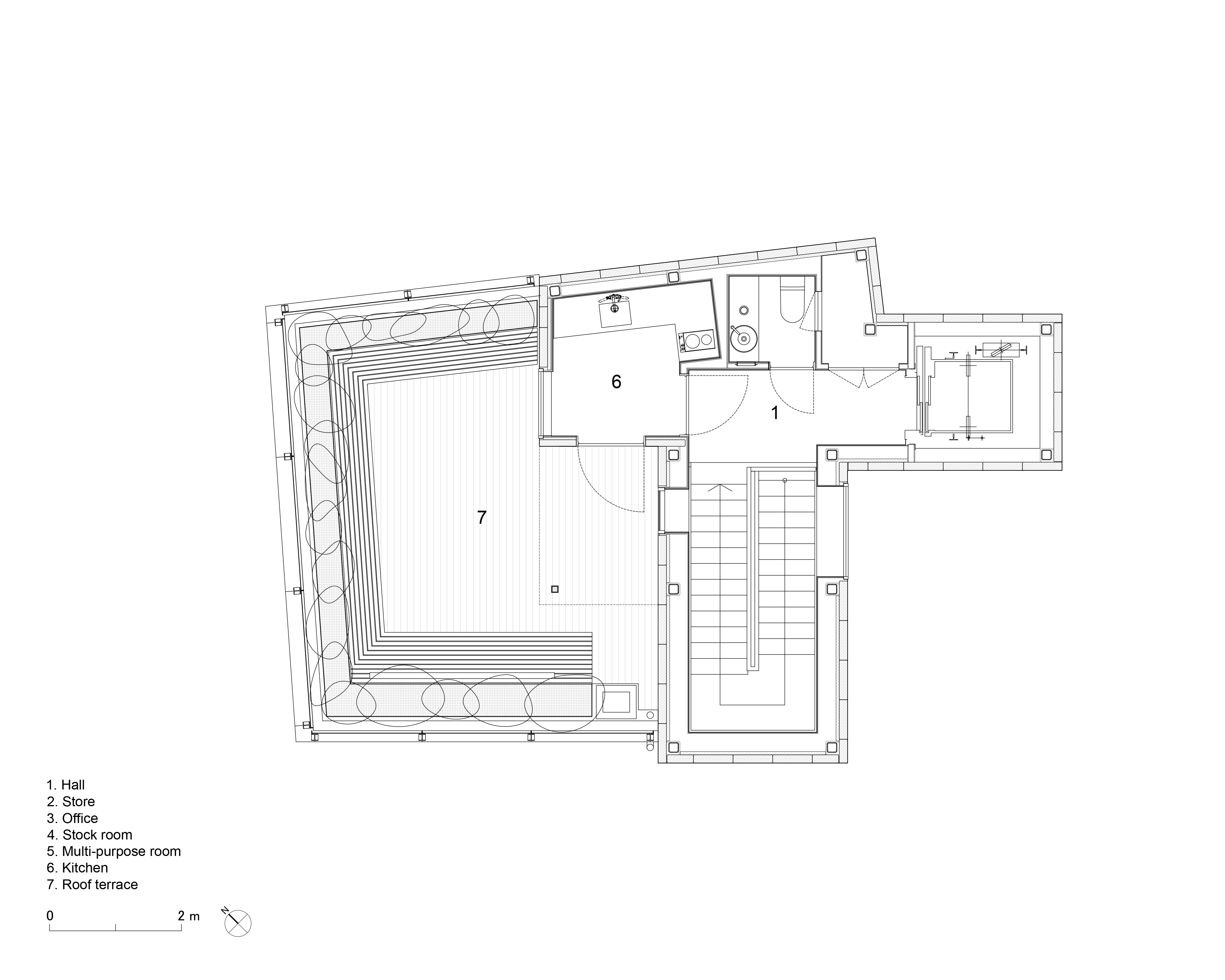
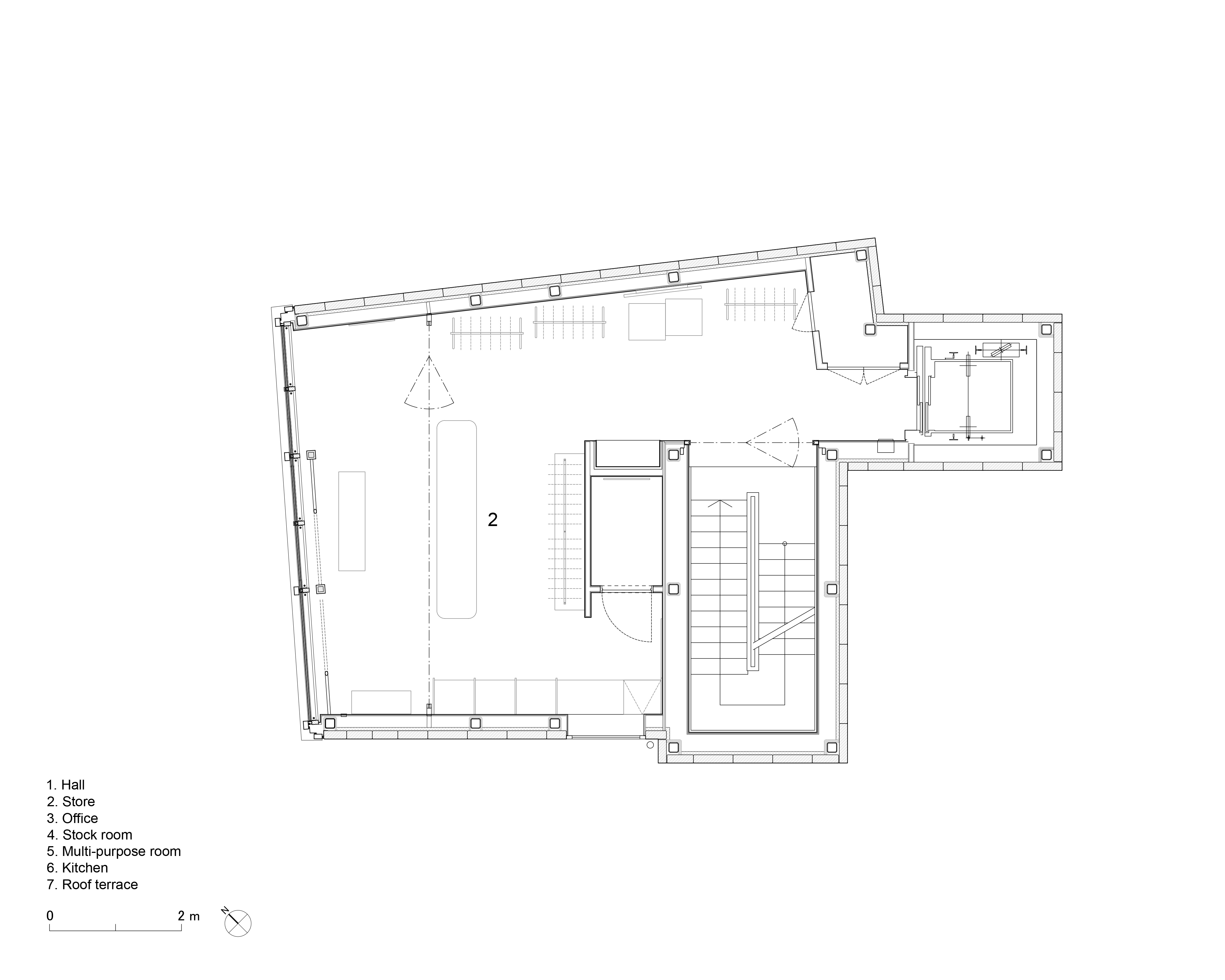
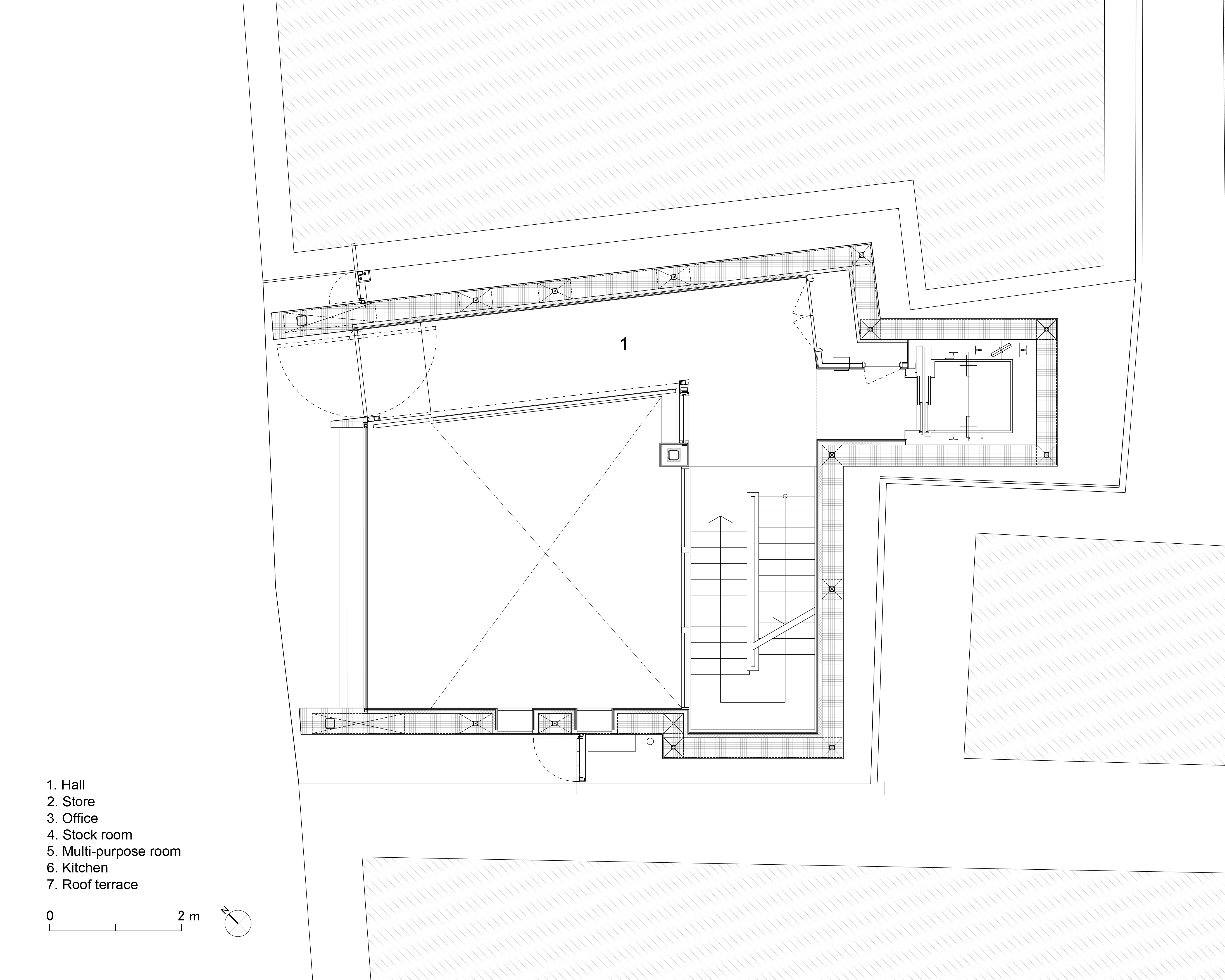
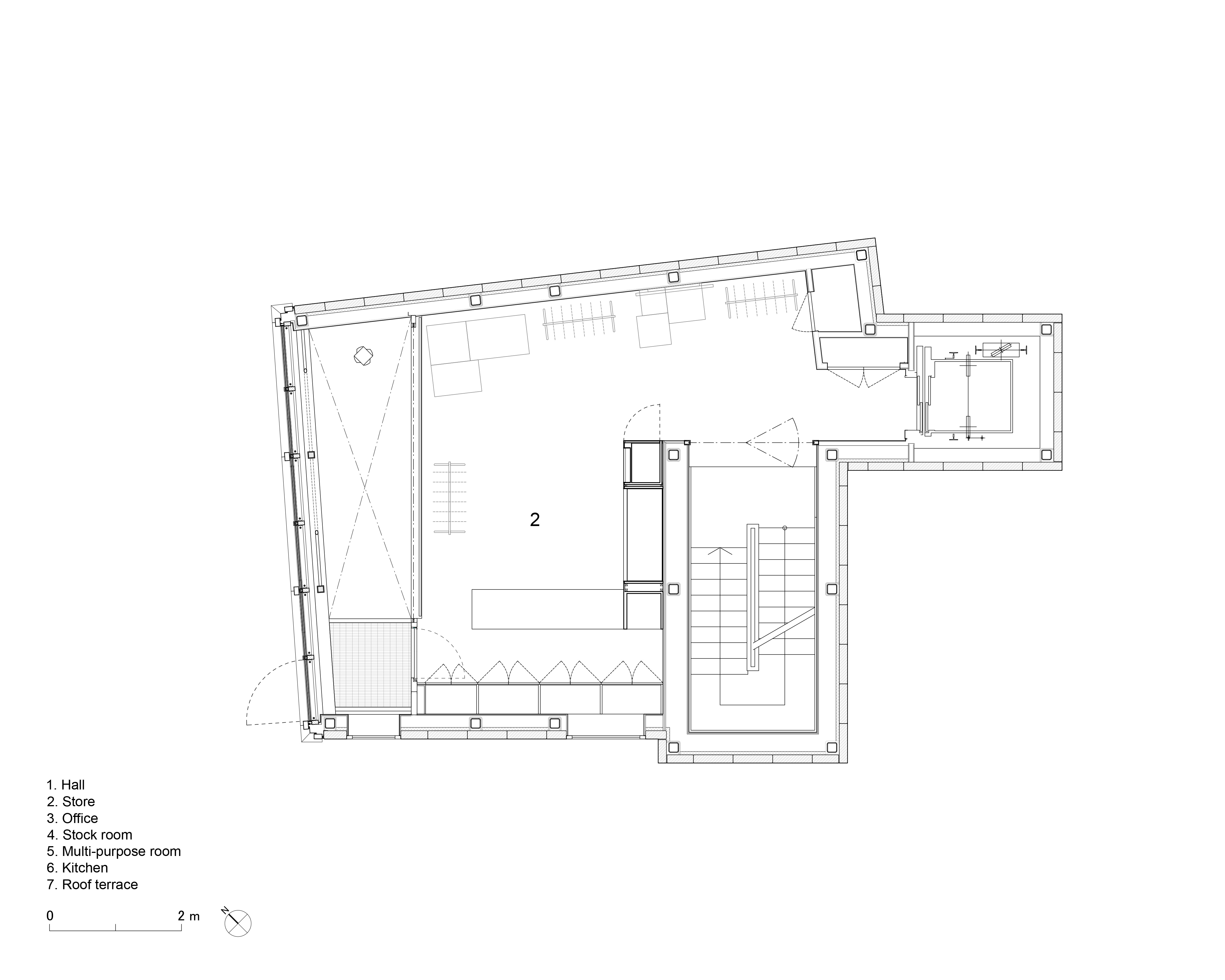
Goldwin Harajuku Building
[The North Face Sphere]

Tokyo/ 2022

Category retail / office
Year 2020-22
Client Goldwin Inc.
Floor area 388 sqm
Structural engeneer Tectonica
MEP engeneer ZO Consulting Engeneers
Lighting planner ModuleX
Building contractor Kitano Construction Corp.
Store fixture contractor Mark Square
Photography Kenta Hasegawa
Mark